Ngôn ngữ kiến trúc hiện đại của thiết kế nhà 5 tầng 6m5x15m5
Các mẫu nhà phố hiện đại có thang máy gần như là biểu tượng cho sự sang trọng được nhiều chủ đầu tư ưa chuộng. Ngôi nhà 5 tầng 6.5x15.5m của gia đình anh Nguyên ở Gò Vấp nổi bật với thiết kế sáng tạo và công năng hợp lý. Hãy cùng Song Phát khám phá chi tiết ngôi nhà qua bài viết dưới đây nhé!
Thiết kế 3D sang trọng, hiện đại
Thiết kế mặt tiền nhà phố hiện đại này nổi bật nhờ sự kết hợp hài hòa giữa các đường thẳng mạnh mẽ và những đường cong phá cách, tạo nên vẻ đẹp độc đáo. Vật liệu chính như gỗ, đá, sơn và kính được sử dụng khéo léo, mang lại sự cân bằng tự nhiên và tinh tế. Tổng thể thiết kế là một tác phẩm hoàn mỹ, giúp ngôi nhà trở nên cuốn hút và khác biệt giữa lòng đô thị nhộn nhịp.
Công năng tối ưu cho nhà 5 tầng 6m5x15m5
Thiết kế nhà trệt lửng 3 lầu 6.5x15.5m tối ưu không gian và tích hợp các tiện ích hiện đại. Tầng trệt gồm garage và phòng khách. Garage rộng rãi đủ cho ô tô và xe máy, kèm theo đôn ngồi và tủ giày tiện lợi. Phòng khách phía sau rộng 20m2, bố trí nội thất đơn giản nhưng thoải mái.
Tầng lửng là không gian bếp ăn rộng rãi, thiết kế mở với cửa lớn hướng ra mặt tiền, tạo sự gần gũi với thiên nhiên. Bên cạnh bếp có kho chứa đồ và một nhà vệ sinh nhỏ tiện lợi, bố trí đối diện nhau, mang lại sự tiện nghi cho cả gia đình.
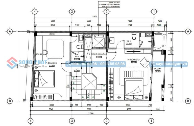
Công năng lầu 2 được bố trí tương tự như lầu 1
Lầu 3 có một phòng ngủ master rộng rãi ở phía trước và một phòng ngủ thường ở phía sau. Diện tích phòng ngủ thứ ba được thu hẹp để bố trí thêm gian giặt phơi nhỏ, phục vụ nhu cầu hàng ngày của gia đình.
Khám phá không gian nội thất của ngôi nhà 5 tầng 5m5x15m5
Không gian nội thất của ngôi nhà được thiết kế theo phong cách hiện đại, sang trọng nhưng không cầu kỳ, với gam màu nâu trầm làm sắc chủ đạo. Trần thạch cao giật cấp kết hợp đèn LED bố trí hợp lý tạo nên vẻ nổi bật và ấn tượng. Điểm nhấn tường giả gỗ và lam trang trí ở phòng khách mang đến không gian ấm cúng và sang trọng.
Phòng ngủ master được thiết kế tối giản, sang trọng với gam màu đen xám làm chủ đạo. Đường phào chỉ âm tường tăng thêm sự huyền bí và tinh tế, phản ánh phong cách cá nhân của gia chủ. Tủ quần áo kịch trần bằng kính kết hợp với ngăn trang trí nâng cao giá trị thẩm mỹ cho không gian.
Phòng ngủ 1 được trang trí tương tự như phòng ngủ master, với bàn làm việc nhỏ và kệ treo tường gần tủ quần áo, tối ưu hóa không gian sinh hoạt và tính thẩm mỹ. Sàn nhà được ốp gạch giả gỗ kiểu xương cá, tạo điểm nhấn nổi bật cho tổng thể không gian.
Khác với kiến trúc tổng thể, phòng ngủ master 2 sử dụng gam màu tươi sáng trắng - xanh, tạo không gian nổi bật và mát mắt. Thảm sàn không chỉ là điểm nhấn thẩm mỹ mà còn giúp không gian trở nên sạch sẽ và gọn gàng hơn.
Phòng vệ sinh trong phòng ngủ master 2 được thiết kế với gam màu tươi sáng, đặc biệt ở gạch thẻ khu tắm đứng. Cửa sổ thông gió dài giúp không khí lưu thông, giữ không gian thoáng đãng và sạch sẽ. Các vật dụng được bố trí hợp lý, tiện lợi cho sinh hoạt hàng ngày. Vách kính mờ ngăn cách khu vực vệ sinh và tắm, đảm bảo thẩm mỹ mà không làm không gian trở nên tù túng.
Phòng ngủ 2 mang đến cảm giác ấm áp với tone màu nhẹ nhàng trắng be kết hợp nâu trầm. Đầu giường được ốp gạch giả gỗ, tạo điểm nhấn nổi bật cho không gian. Kệ cửa sổ được bố trí hợp lý, không chỉ tăng tính thẩm mỹ mà còn tối ưu hóa không gian cho các vật dụng hàng ngày, sách và tài liệu.
Toàn cảnh tầng trệt rộng rãi
Không gian phòng khách được thiết kế tinh tế
Các loại vật liệu hiện đại giúp phòng khách trở nên sang trọng hơn cả
Mỗi góc đều được gia chủ đầu tư nội thất tinh tế
Ban công đưa ra 1.2m
Nhà vệ sinh trong phòng ngủ master 1
Phòng ngủ của con trai phía sau lầu 1
Không gian rộng rãi, đầy đủ nội thất hiện đại
Kệ tủ trưng bày thiết kế độc đáo, lạ mắt
Nhà vệ sinh ngay trong phòng ngủ độc đáo với gạch mossiac
Ngôi nhà sử dụng cầu thang sắt đơn giản nhưng không thiếu sự hiện đại
Không gian phòng ngủ của bé gái phía trước lầu 2
Thiết kế màu sắc trẻ trung, phù hợp với độ tuổi của bé
Nội thất hiện đại, đầy đủ tiện nghi
Nhà vệ sinh bên trong phòng ngủ
Không gian phòng ngủ 2
Thiết kế nội thất tương tự phòng ngủ 1
Thiết kế nhà 5 tầng 6.5x16.5m tạo nên một tổng thể kiến trúc sinh động và rõ ràng về cấu trúc ngôi nhà. Tùy theo nhu cầu và sở thích của từng chủ đầu tư, Song Phát sẽ đề xuất các phương án thiết kế đa dạng, đảm bảo sự hài lòng tối đa cho khách hàng.
Liên hệ ngay với chúng tôi để sở hữu mẫu thiết kế nhà đẹp của riêng bạn!
Xem thêm: Thiết kế nhà 1 trệt 1 lầu sân thượng 4m5x17m tối ưu công năng tại Thủ Đức
Tác giả: Kiến Trúc Xây Dựng Song Phát.
Xây Dựng Sự Trường Tồn.
Thông tin liên hệ:
Công Ty CP ĐT Kiến Trúc Xây Dựng Song Phát.
Địa chỉ: 36/1 Bàu Cát 1, Phường 14, Q.Tân Bình, TP.HCM
Xưởng nội thất: 28/6 Tân Chánh Hiệp 07, Phường Tân Chánh Hiệp, Q. 12, TP. HCM
Hotline: 0941.85.98.98 – 0918.85.98.98
Email: songphat@xaynhasaigon.vn
































































Comments
Post a Comment