Sở hữu kiến trúc hiện đại, tiện nghi của thiết kế nhà 4 tầng 4x14m
Thang máy gia đình ngày càng trở nên phổ biến, không chỉ nhờ vào sự tiện lợi mà còn bởi khả năng nâng tầm không gian sống. Với thiết kế hiện đại, ngôi nhà 4 tầng diện tích 4x14m đã ứng dụng thành công thang máy kính – giải pháp mang đến sự tiện nghi và đẳng cấp. Thang máy kính không chỉ hỗ trợ việc di chuyển giữa các tầng trở nên dễ dàng hơn, đặc biệt với người lớn tuổi hay trẻ nhỏ, mà còn trở thành điểm nhấn thẩm mỹ độc đáo cho không gian nội thất. Sự kết hợp giữa tiện ích và vẻ đẹp kiến trúc trong thiết kế này đã tạo ra một không gian sống hiện đại, thoải mái và đầy tính ứng dụng. Cùng Song Phát khám phá chi tiết mẫu nhà 4 tầng đẹp, hiện đại qua những góc nhìn đặc sắc nhé!
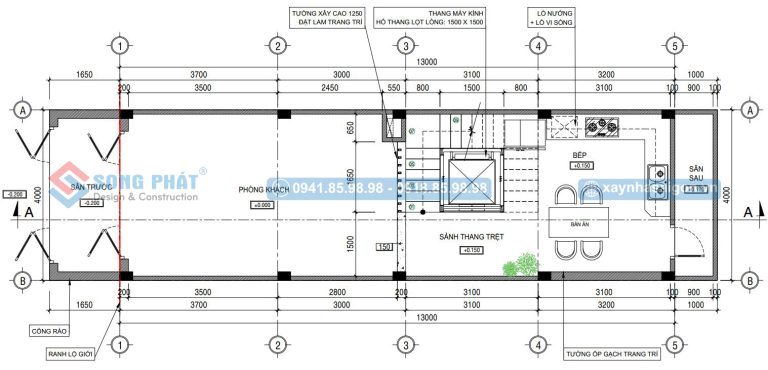
Để tối ưu hóa diện tích cho nhà ống, việc bố trí thang máy hợp lý là yếu tố quan trọng, đặc biệt khi Chủ đầu tư mong muốn tận dụng tối đa không gian. KTS Song Phát đã đưa ra giải pháp hiệu quả bằng cách đặt thang máy trong lòng thang bộ. Cách bố trí này không chỉ tiết kiệm diện tích mà còn đảm bảo tính thẩm mỹ và tiện nghi cho ngôi nhà.
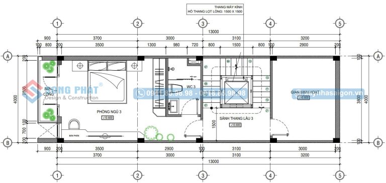
Thang máy kính được thiết kế chạy xuyên suốt từ tầng trệt đến sân thượng, với kích thước hố thang lọt lòng là 1500×1500, đáp ứng đầy đủ nhu cầu sử dụng của gia đình.
Mặt bằng công năng của ngôi nhà phố trệt, 3 lầu và sân thượng mái BTCT được sắp xếp như sau:
- Tầng trệt: Gồm sân trước, phòng khách, bếp ăn và sân sau
- Lầu 1: Phòng ngủ 1, nhà vệ sinh, gian sinh hoạt
- Lầu 2: Phòng ngủ 2, nhà vệ sinh, gian sinh hoạt
- Lầu 3: Phòng ngủ 3, nhà vệ sinh, gian sinh hoạt
- Sân thượng: Sân thương trước, sân phơi
Để sở hữu một ngôi nhà hoàn hảo, việc lựa chọn một đơn vị thiết kế và thi công đáng tin cậy là yếu tố hàng đầu. Với nhiều năm kinh nghiệm trong lĩnh vực xây dựng nhà phố và khả năng triển khai đồng thời hơn 30 công trình, Song Phát cam kết mang đến cho quý khách những dự án chất lượng vượt trội. Hãy liên hệ với chúng tôi ngay hôm nay để được tư vấn chi tiết và nhận báo giá thiết kế hoàn toàn miễn phí!
Xem thêm: Thiết kế căn hộ cho thuê 5 tầng mặt tiền 5m2 hiện đại, tiện nghi
Tác giả: Kiến Trúc Xây Dựng Song Phát.
Xây Dựng Sự Trường Tồn.
Thông tin liên hệ:
Công Ty CP ĐT Kiến Trúc Xây Dựng Song Phát.
Địa chỉ: 36/1 Bàu Cát 1, Phường 14, Q.Tân Bình, TP.HCM
Xưởng nội thất: 28/6 Tân Chánh Hiệp 07, Phường Tân Chánh Hiệp, Q. 12, TP. HCM
Hotline: 0941.85.98.98 – 0918.85.98.98
Email: songphat@xaynhasaigon.vn







Comments
Post a Comment