Nhà 4 tầng có thang máy kính – Chuẩn mực sống mới giữa lòng phố thị
Trong danh mục các mẫu nhà phố đẹp đang được săn đón hiện nay, những thiết kế nhà 4 tầng có thang máy kính đã nhanh chóng khẳng định vị thế nhờ sự tiện nghi, tinh tế và khả năng thích ứng với cuộc sống đô thị hiện đại. Không chỉ đơn thuần là phương tiện di chuyển, thang máy kính trở thành điểm nhấn kiến trúc độc đáo, nâng tầm giá trị ngôi nhà cả về hình thức lẫn công năng sử dụng.
Kiến trúc mặt tiền độc bản cho nhà 4 tầng có thang máy kính
Bỏ qua những lối mòn thiết kế thường thấy, công trình này tạo dấu ấn bằng hình khối mềm mại, nhấn nhá bằng đường cong tinh tế và gam màu trung tính thanh lịch. Mặt tiền nhà 4 tầng sử dụng lam gỗ nhựa kết hợp với hệ cửa kính cường lực và lan can uốn cong sơn tĩnh điện – tất cả hòa quyện tạo nên một tổng thể vừa hiện đại vừa gần gũi.
Đặc biệt, thang máy kính lộ thiên phía mặt trước không chỉ giúp việc di chuyển giữa các tầng trở nên nhẹ nhàng hơn, mà còn góp phần mở rộng tầm nhìn, đón sáng tự nhiên và tạo cảm giác không gian thoáng đãng, không bị giới hạn như những ngôi nhà phố truyền thống.
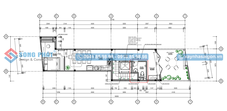
Bố trí mặt bằng nhà 4 tầng có thang máy kính – Tối ưu từng centimet
Tầng trệt:
Không gian tầng trệt được quy hoạch rõ ràng với khu vực để xe rộng thoáng, phòng khách đặt phía trong nhưng vẫn đón sáng tốt nhờ hệ cửa kính lớn. Phía sau bố trí phòng ngủ cho người lớn tuổi, một nhà vệ sinh chung và khu vực sảnh thang – nơi đặt hệ thang máy kính như trục kết nối trung tâm cho toàn bộ ngôi nhà.
Lầu 1:
Tầng này được chia thành các khu vực riêng biệt: một phòng ngủ phía trước, không gian bếp ăn – bàn ăn ở trung tâm và thêm một phòng ngủ nhỏ phía sau. Khu vực giặt phơi kín đáo nhưng dễ tiếp cận. Tất cả không gian đều được thiết kế mở, tận dụng tối đa ánh sáng trời và không khí tự nhiên.
Lầu 2:
Góc riêng tư của vợ chồng gia chủ được ưu tiên bố trí tại tầng 2. Một phòng ngủ master rộng với logia thông thoáng, kết hợp phòng tắm khép kín. Ngoài ra, còn có thêm một gian sinh hoạt chung và góc nhỏ làm phòng tập thể dục – thể hiện lối sống năng động và hiện đại của các gia đình trẻ.
Sân thượng:
Sân thượng phía trước là nơi đặt bàn trà, BBQ hoặc bố trí không gian thư giãn ngoài trời. Phía trong gồm phòng thờ, một khu bếp phụ, nhà vệ sinh và một phòng ngủ nhỏ. Với cách tổ chức không gian sáng tạo, sân thượng không chỉ là nơi phơi đồ mà còn trở thành tầng chức năng bổ trợ hoàn hảo cho cả ngôi nhà.
Không gian sống không chỉ dừng lại ở yếu tố thẩm mỹ mà còn phải thể hiện rõ sự tiện nghi, khoa học và thuận tiện trong sinh hoạt hàng ngày. Nhà 4 tầng có thang máy kính là bước tiến đáng kể trong thiết kế nhà phố hiện đại – nơi tiện ích và kiến trúc cùng song hành. Mỗi tầng, mỗi khu vực đều mang đến sự kết nối mạch lạc và cảm xúc sống tích cực cho từng thành viên trong gia đình.
Bàn giao nhà 4 tầng có thang máy kính khu vực Quận 1
Các vật dụng tiện nghi đầy đủ tạo nên một không gian nhà bếp đẹp, hiện đại
Không gian phòng ngủ 1
Thang máy kính tiện lợi cho việc di chuyển giữa các tầng
Căn phòng được bố trí bàn làm việc riêng
Không gian bếp lầu 3 được bố trí tương tự như các khu vực còn lại
Với kinh nghiệm thực chiến qua hàng trăm công trình lớn nhỏ, Song Phát không ngừng cải tiến giải pháp thiết kế và thi công để phù hợp với từng gia chủ, từng lô đất. Đặc biệt, những công trình có độ phức tạp cao như nhà 4 tầng có thang máy kính luôn được Song Phát triển khai một cách chỉn chu, tỉ mỉ và linh hoạt, đảm bảo cả thẩm mỹ lẫn công năng.
Nếu bạn đang tìm kiếm một đơn vị nhận thi công xây dựng nhà trọn gói đáng tin cậy – từ thiết kế đến hoàn thiện, hãy liên hệ với Song Phát để được tư vấn chuyên sâu, khảo sát thực tế và báo giá chính xác ngay hôm nay.
Tác giả: Kiến Trúc Xây Dựng Song Phát.
Xây Dựng Sự Trường Tồn.
Thông tin liên hệ:
Công Ty CP ĐT Kiến Trúc Xây Dựng Song Phát.
Địa chỉ: 36/1 Bàu Cát 1, Phường 14, Q.Tân Bình, TP.HCM
Xưởng nội thất: 28/6 Tân Chánh Hiệp 07, Phường Tân Chánh Hiệp, Q. 12, TP. HCM
Hotline: 0941.85.98.98 – 0909.50.53.58
Email: songphat@xaynhasaigon.vn






























Comments
Post a Comment